Bijlage 6. Notities overgenomen uit de bouwaanvraag
Gemeente Zoetermeer afd Vergunningenverlening Toezicht en Handhaving
Bouwaanvraag bouwvergunning: 2010/0010 07 jan 2010 Sterigenics:
- Aanvraag door P.Lipkens , Sterigenics Holland B.V.
3. Kosten: 15000 Euro
7. Gebruik van het bouwwerk: industrie
8. Afmeting van het bouwwerk:
a. Bebouwd oppervlak voor uitvoering van de werkzaamheden: 2970 m2
b. Bruto vloeroppervlak na de uitvoering van de werkzaamheden: +81 m2
c. Verandering bruto inhoud van de werkzaamheden: + 215 m2
9. Tekening 1149004
9b. Wilt u bouwplannen toelichten: Nee
10. Andere vergunningen nodig: Milieuvergunning.
12. Handtekening: zie 1
Bijlage
1149001 Tebodin 6 januari 2010. Foto’s situatie 23 dec 2009.
1149002 Tebodin 6 januari 2010. Bestaande situatie plattegrond: uitbreiding scrubber en opslagruimte, plaatsing containers.
1149003 Tebodin 6 januari 2010. Bestaande situatie gevels: uitbreiding scrubber en opslagruimte, plaatsing containers.
1149004 Tebodin 6 januari 2010. Nieuwe situatie plattegrond: uitbreiding scrubber en opslagruimte, plaatsing containers.
1149005 Tebodin 6 januari 2010. Nieuwe situatie gevels: uitbreiding scrubber en opslagruimte, plaatsing containers.
Uitbreiding scrubber:
- Plaatsing containers (gebruiksoppervlak 60 m2) 12,2 x 2,45 x 2,55 m
- Verhoging scrubber uitblaas door het aanbrengen van een tussenstuk van ca 4.000 mm.
- Uitbreiding opslagruimte ten behoeve van de opslag oude olie (6,8, m2)
- Uitbreiding opslagruimte ten behoeve van opslag lege gascilinders (7,5 m2)
- Overkapping t.b.v. zijtoegang (7,0 m2)
Revisie A:
1149003 Tebodin 4 maart 2010. Bestaande situatie gevels: uitbreiding scrubber en opslagruimte, plaatsing containers. (datum gemeente 8 maart 2010)
1149004 Tebodin 5 maart 2010. Nieuwe situatie plattegrond: uitbreiding scrubber en opslagruimte, plaatsing containers. . (datum gemeente 8 maart 2010)
1149005 Tebodin 5 maart 2010. Nieuwe situatie gevels: uitbreiding scrubber en opslagruimte, plaatsing containers. (datum gemeente 8 maart 2010)
- Wijziging opslag volle cilinders (5,0 m x 1,5m = 7,5 m2)
- Wijziging opslag volle cilinders (5,2 m x 1,5 m = 7,8 m2 )
1. De vergunning wordt aangevraagd ter legalisering van uitgevoerde werkzaamheden (scrubber, containers) en nog uit te voeren werkzaamheden (opslag volle cilinders). Het is niet meer op te maken welke werkzaamheden nu wel en welke niet zijn uitgevoerd. Controle en handhaving wordt op deze wijze gefrustreerd.
De problemen rond Sterigenics zijn ondermeer ontstaat door niet handhaven, en niet kunnen handhaven en niet kunnen controleren. Met deze bouwvergunning geeft de gemeente Zoetermeer aan dat ze niets geleerd heeft uit het verleden of, op de zelfde foute wel wil voortgaan.
Het is uit de bouwaanvraag niet meer mogelijk onomstotelijk op te maken wat wel al gebouwd is en wat nog gebouwd moet worden. En dus is ook niet bekend wat wel en niet gemeld en gecontroleerd moet worden.
De scrubber is verlengd, maar onbekend is wanneer dat is gebeurd en Zoetermeer vindt dat ten onrechte “zo goed”.
2. De wijziging opslag volle cilinders [6] en [7] is, zonder dat daarvoor een bouwaanvraag was ingediend, toegevoegd aan de aanvraag, en werd zonder toelichting pas getoond op de hoorzitting zodat hierop niet in de zienswijze kon worden gereageerd.
Het is vreemd dat aan deze bouwvergunning extra wordt toegevoegd een opslag voor de volle drukvaten ethyleenoxide, terwijl daar in het geheel niet om was gevraagd. Zie ook 11.
Ter vergelijking als voorbeeld, iemand bouwt clandestien een huis dat strijdig is met het bestemmingsplan (bouwhoogte) en de gemeente volstaat met een bouwvergunning achteraf en geeft er een bouwvergunning van een garage bij cadeau.
Deze wijze van handelen schept ongewenste precedenten of tast het rechtsgevoel aan van andere burgers die voor minder door de gemeente worden gesanctioneerd.
De wijze van aanvulling is tekenend voor Zoetermeer: zonder veel toelichting, als revisie, nadat zienswijzen zijn ingediend. Zoetermeer beroept zicht op de ingediende zienswijzen en op deze revisies heeft men nooit een zienswijze kunnen indienen en de gewijzigde tekeningen kwamen pas op of na de hoorzitting open op tafel. Ik teken bezwaar aan tegen het indienen van wijzigingen zinder duidelijke toelichting nadat de zienswijzen zijn ingediend en voor de beslissing daarover.
3. De huidige en de nieuwe opslag voldoen niet aan de eisen omdat in de nabijheid (ca 3m) een straatkolk aanwezig is.
Ten onrechte zegt men dat men naar zaken als veiligheid heeft gekeken wanneer ik een straatkolk aantref nabij de opslag. Dit is niet toegestaan wanneer het brandbare en ontplofbare gassen betreft die zwaarder zijn als lucht. De gassen kunnen zich op een diep punt in de straatkolk verzamelen en elders tot ontploffing komen.
4. De huidige opslag van de volle tanks is niet gebouwd in overeenstemming met de verleende bouwvergunning (stenen zijmuren).
Het zou de gemeente opgevallen moeten zijn dat de huidige opslag niet is uitgevoerd volgens de oorspronkelijke bouwvergunning en tekening (volgens plan 24-10-1989) die spreekt over een opslag waarvan de zijmuren van metselwerk zijn.
5. De gemeente heeft binnen de risicocontour van de opslag, Bode Scholten toestemming gegeven om tot op 2,4 meter van de opslag op de erfscheiding te bouwen tot een hoogte van ca 13 -15 meter. Betwijfeld wordt of de veiligheidsrisico’s zijn onderzocht met betrekking tot de opslag , de uitstroming van de calamiteitenpijp, de incinerator en scrubber.
Voor de opslag van ethyleenoxide geldt een risicocontour van 6 meter. Onbegrijpelijk dat Bode Scholten tot op de perceelgrens de toegangsweg mag bebouwen en tot een afstand van 2,4 meter van de opslag (binnen de risicocontour) , en ook nog eens tot een hoogte van geschat 13 – 15 meter hoog.
Bij Scholten wordt de ontsluiting van het perceel beperkt. Bovendien wordt bij brand rond de gevaarlijke opslag de bewegingsvrijheid om een brandhaard te naderen voor de brandweer in het bijzonder beperkt. Immers voorheen liep aan de zijde van Bode Scholten een weg van minstens 2,5 meter breedte.
Door de nabijheid van de hoge hal van Bode Scholten ontstaat een smalle doorgang waartussen zich de opslag van brandbaar en explosief ethyleenoxide bevindt. Bij een explosie zal de drukgolf weinig ruimte hebben om te expanderen . De grote oppervlakte krijgt daarbij bijzonder grote krachten te verwerken met een accent op de basis van de hoge muur.
Nu de nieuwbouw van Bode Scholten er staat is de enige voor de hand liggende oplossing de verplaatsing van de opslag elders, bijvoorbeeld aan de zijde waar nu de zeecontainers staan te positioneren. De huidige locatie is risicovol en niet gewenst.
De hoogte van het gebouw van Bode Scholte is van gelijke orde als de werkelijke hoogte (die afwijkt van de tekeningen) van de incinerator (naverbrander) en de scrubber. Dit heeft gevolgen voor de uitstroming van ethyleenhoudende gassen. Dat geldt ook voor die van de hogere calamiteitenpijp
Uit geen enkel stuk blijkt dat er enig onderzoek is geweest welke effecten dat heeft op de verspreiding van de verontreinigde pluim uit de diverse verontreinigingsbronnen. Ook hier zien we dat de veiligheid geen aandacht heeft gekregen.
6. De aanvraag bouwvergunning heeft het bij de scrubber over enkel een verlenging. Men heeft echter de twee venturi scrubbers gemodificeerd / gesloopt, zodat niet duidelijk is of deze nog functioneren. De toevoer van de reactievloeistof in de kop van de twee kolommen is verwijderd. Dit is niet gemeld en de gemeente heeft dit niet onderzocht.
De scrubber dient om verontreinigde lucht waar zich ethyleenoxide in bevindt te reinigen. Dat doet men door de lucht intensief in contact te brengen met een reactievloeistof. Dit gebeurde in de twee kolommen links en rechts van de scrubber schoorsteen. Maar de gemeente wil niet zien en reageren op de aanwijzing dat een deel van de scrubber is afgebroken. De toevoer van de vloeistof is verdwenen – afgebroken. Nergens is dit vastgelegd middels een sloopvergunning. Dat bemoeilijkt het onderzoek naar de aard en de duur van de verontreiniging. Immer. Er moet getwijfeld worden aan de werking van de scrubber nadat die half is gesloopt. De bouwvergunning laat zich hierover niet uit.
Het resultaat is dat de procestekeningen en installatietekeningen in het bouwarchief een totaal andere situatie weergeven als werkelijk het geval is. Onderzoek gebeurt met verkeerde tekeningen en veronderstellingen en kunnen leiden tot verkeerde conclusies. Ook bij calamiteiten moet de brandweer werken met tekeningen die niet juist zijn en daardoor brandweerlieden in gevaar kunnen brengen (zie ook 13).
7. De tekeningen geven aan dat de scrubber is /wordt verlengd van +7,8 meter naar 10,8 meter. Dit is niet juist. Fotogrammetrisch is vastgesteld dat de kolommen nog eens met ca 1,3 meter extra zijn verlengd tot ca 12 meter hoogte.
De scrubber is 1,3 meter langer geworden dan op de tekening staat aangegeven. Dat betekent dat de schoorsteen van de scrubber 4 meter langer is dan het bestemmingsplan toestaat. Dat betekent ook dat de berekeningen van RIVM niet juist kunnen zijn omdat men van verkeerde gegevens uitgaat die invloed hebben op de risicoanalyse van RIVM.
8. Aan de hand van luchtfoto’s is vastgesteld dat de huidige incinerator (naverbrander) NA de verhoging van de scrubber is vervangen en gewijzigd. Een bouwvergunning ontbreekt. De gemeente kan hier geen informatie over verstrekken. De ingediende bouwtekeningen geven een foutief beeld.
De incinerator is na de verhoging van de scrubber gewijzigd. Dat is aan de hand van luchtfoto’s onomstotelijk vastgesteld. Nergens blijkt dat er sprake is van een sloopvergunning of een bouwvergunning en in deze fictie van een bouwvergunning wordt geen melding gedaan van enige wijziging.
Als resultaat staat er ook hier “iets” anders dan de tekeningen in het bouwarchief ons doet geloven.
Zie ook 9.
9. De incinerator (naverbrander) wordt ingetekend met een hoogte van 10,9 meter. Dit is niet juist. Fotogrammetrisch is vastgesteld dat de hoogte ruim 2,5 meter hoger is en ca 13, 5 meter bedraagt.
De incinerator (naverbrander) is niet alleen anders dan op tekening van het archief, maar de lengte zoals of de tekening van de huidige vergunning wordt weergegeven is ook anders dan in werkelijkheid. Er is een hele ring boven geplaatst met een lengte van 2,5 meter. En ook hier wordt in strijd met het geldende bestemmingsplan de maximale bouwhoogte overschreden.
Ook hier geldt dat het RIVM met foutieve gegevens heeft gerekend en dat daardoor de berekeningen niet kunnen kloppen.
10. De gemeente heeft de twee schoorstenen niet getoetst aan het geldende bestemmingsplan. Het plan spreekt over een maximale bouwhoogte van 8 meter die met resp. 4 en 5,5 meter wordt overschreden. In het verleden werd voor de scrubber een ontheffing verleend, gezien de toen geringe overschrijding. De gemeente ontkent nu dat er een bouwhoogtelimiet voor de installaties geldt. Dit is niet juist.
Voortdurend wordt door dhr Emmens gezegd dat alles in overeenstemming met het bestemmingsplan is. Schoorstenen vallen naar zijn mening buiten de gestelde bouwhoogtelimiet van 8 meter en het is ook geen bouwwerk. Maar we mogen dit niet met een schoorstenen van een woonhuis vergelijken. Het is een zelfstandige chemische procesinstallatie.
Voortdenkend in de geest van Emmens zou je zonder enig probleem bij een huis van twee verdiepingen een “schoorsteen” mogen neerzetten met de dubbele hoogte als die van het huis?
Bij de scrubber was de bouwhoogte oorspronkelijk 80 cm boven de bouwlimiet en er werd een ontheffing verleend (bouwplan 563/1990 dd 26 juli 1990) omdat de hoogte niet in overeenstemming met het bestemmingsplan was. De verleende bouwvergunning schiet hierin tekort en kan daarom niet zo maar worden afgegeven. Er is geen ontheffing verleend.
11. De oude bouwvergunnningen van de opslag, de scrubber en de naverbrander zijn onderzocht. Er is vastgesteld dat de objecten niet in overeenstemming zijn met enige bouwvergunning, ook niet met de nieuwe.
In eerdere punten is al aangegeven dat deze bouwvergunning op alle fronten niet deugt en nooit door een blind paard goedgekeurd mocht worden.
12. Nergens is vastgelegd op welke wijze de verlengingen van de installaties bouwtechnisch is vastgelegd, berekend, gecontroleerd. De actuele tekeningen ontbreken bij de gemeente Zoetermeer.
De wijzigingen die zijn aangebracht aan bouwwerken, bouwdelen en processen worden nergens deugdelijk, volledig en controleerbaar vastgelegd. De verhoging van de schoorstenen en de extra verhoging buiten de tekeningen om worden niet verantwoord voor wat betreft de constructie. Nergens wordt gekeken of de belasting van de houten palen fundering niet een kritieke waarde bereikt door er een extra gewicht van 2000 kg op te plaatsen. Nergens wordt gekeken wat de gevolgen zijn voor de windbelasting nu de schoorstenen boven de bebouwing (hoogte 6 meter) uitsteken.
13. Ook de afvoer van de geconcentreerde etyleenoxide naar de naverbrander komt niet overeen met de tekeningen in het archief van de gemeente en is blijkbaar verplaatst.
Een van de vele gevaarlijke zaken die bij de brandweer kan leiden tot een dodelijke vergissing. Op de oorspronkelijke bouwtekening staat de afvoer van geconcentreerd ethyleenoxide tussen de sterilisatieruimte en de naverbrander als inpandig getekend. Uit waarneming heb ik kunnen afleiden dat de leiding buiten het gebouw loopt boven de opslag. Ook daarin zijn de tekeningen al misleidend genoeg. De huidige tekeningen wijken zoals gemeld nog meer af van de werkelijkheid.
De bouwtekeningen zijn onvolledig en fout op essentiële punten.
14. De welstandscommissie heeft het advies op de aanvraag (punt J) niet ingevuld en dus niet beoordeeld. Dit is niet in overeenstemming met dat wat de gemeente overbrengt.
De welstand commissie heeft de vragen onder punt J niet beantwoord:
- Het gebouw voldoet wel/niet aan de stijlen- en de gebiedsbeschrijving van het plan omdat
- Wel / niet in overeenstemming is met de karakteristiek van….
- Wel / niet aanvaarbaar is wat betreft massa, maat, schaal, kleur,….
- Wel / niet aanvaardbaar wat betreft samenhang ….
- Het bouwplan .. voldoet wel niet aan de stijlrichtlijnen als genoemd onder..
Op al deze punten neemt de welstand commissie geeft stand punt in. Met volstaat met een eenvoudige “voldoet wel” conclusie zonder verdere toelichting (20 jan 2010).
Bovendien zou het advies openbaar bij te wonen zijn. Maar gezien de datum van toets (15 januari 2010) en datum ondertekening (20 januari 2010) en het rooster van de commissie wordt getwijfeld of de zitting openbaar was dan wel deugdelijk bekend gemaakt. Ook gezien de afwijking van de hoogtes van de schoorstenen op tekening van ten opzichte van de werkelijkheid van meer dan 20% maakt de beoordeling vanaf papier waardeloos. Het besluit is genomen men onjuiste en onvolledige informatie.
15. Tot slot heb ik bij de Kamer van Koophandel te Zoetermeer vastgesteld dat de heer van P. Lipkens geen vertegenwoordigingsbevoegdheid heeft en dus geen tekeningsbevoegdheid namens Sterigenics.
De heer Lipkens mocht geen bouwaanvraag indienen namens Sterigenics anders dan als gemachtigde. In de aanvraag bouwvergunning wordt aangegeven dat er van machtiging geen spraken is. De aanvraag bouwvergunning is niet rechtsgeldig en kan dan ook niet goedgekeurd worden.
Gezien de opbouw van de handtekening heb ik reden om aan de echtheid van de handtekening te twijfelen. Ik houd er rekening meer dat iemand van de gemeente getekend heeft. Ik heb tijdens de hoorzitting verzocht dat te laten controleren maar dat is niet gebeurd.
CONCLUSIE
De bouwaanvraag deugt niet:
- Procedureel
- Technisch
- Inhoudelijk
- Ethisch en moreel
- Bestemmingsplan
- Rechtsgeldigheid
Voor de oorzaak van het Sterigenics schandaal werd gewezen naar een falende handhaving en onduidelijke of niet controleerbare afspraken.
Ik stel vast:
• dat een situatie wordt geschapen die wederom niet controleerbaar is en daarom niet te handhaven is.
• dat fouten in de vergunning en de tekening kunnen leiden tot verkeerde beslissingen met mogelijk levensgevaarlijke gevolgen.
• dat er veel wijzigingen in en om het gebouw plaatsgevonden hebben die ingrijpend zijn geweest in het proces waarvoor een milieuvergunning afgegeven is.
• Dat het onbegrijpelijk is dat nooit een revisievergunning of geheel nieuwe milieuvergunning als eis is gesteld.
Verder heb ik kritiek op de hoorzitting.
• Het moment en wijze dat revisies toegevoegd werden.
• De onzorgvuldige en onvolledige afdoening van kritische opmerkingen in het verslag.
Ik teken formeel bezwaar aan tegen het toekennen van de bouwvergunning, maar tevens met de eis dat deze bouwvergunning om eerder genoemde punten vernietigd wordt.
In de veronderstelling dan wel de hoop dat al mijn punten duidelijk zijn overgekomen,
Getekend
Zoetermeer, 4 mei 2010
E.E.F. Stevenhagen
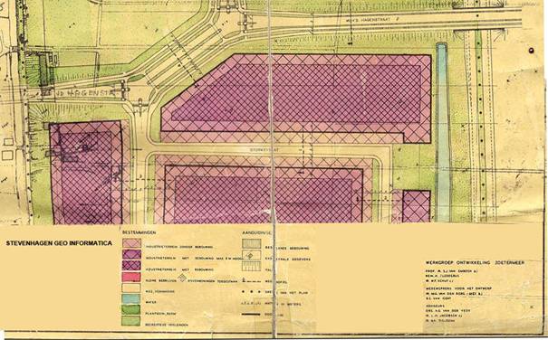
Bijlage 1. Het geldende bestemmingsplan: zie licht paars, maximale bouwhoogte van 8 meter.
Bijlage 2. Situering t.o.v. het bestemmingsplan 1. Verlengde scrubber 12 meter hoog, 2 incinerator 13,5 meter hoog.
Bijlage 3. Overschrijding van de maximale bouwhoogte van 8 meter door de incinerator en scrubber en de afwijking ten opzichte van de opgegeven maten op de tekening van de aanvraag
Bijlage 4. Opslag ethyleenoxyde zonder stenen zijmuren (oorspronkelijke bouwvergunning) Niet toegestane straatkolk. Rechts Bode Scholten op een afstand van ca 2,5 meter. Zilverkleurige pijp aan de zijkant van de uitwendige etyleenoxide afvoer naar de incinerator aan het eind.
Bijlage 5. De scrubber is deels gesloopt/gewijzigd. De toevoer in geel is gesloopt.
De scrubber werkt mogelijk helemaal niet meer.
Bijlage 6. Notities overgenomen uit de bouwaanvraag
Gemeente Zoetermeer afd Vergunningenverlening Toezicht en Handhaving
Bouwaanvraag bouwvergunning: 2010/0010 07 jan 2010 Sterigenics:
1. Aanvraag door P.Lipkens , Sterigenics Holland B.V.
3. Kosten: 15000 Euro
7. Gebruik van het bouwwerk: industrie
8. Afmeting van het bouwwerk:
a. Bebouwd oppervlak voor uitvoering van de werkzaamheden: 2970 m2
b. Bruto vloeroppervlak na de uitvoering van de werkzaamheden: +81 m2
c. Verandering bruto inhoud van de werkzaamheden: + 215 m2
9. Tekening 1149004
9b. Wilt u bouwplannen toelichten: Nee
10. Andere vergunningen nodig: Milieuvergunning.
12. Handtekening: zie 1
Bijlage
1149001 Tebodin 6 januari 2010. Foto’s situatie 23 dec 2009.
1149002 Tebodin 6 januari 2010. Bestaande situatie plattegrond: uitbreiding scrubber en opslagruimte, plaatsing containers.
1149003 Tebodin 6 januari 2010. Bestaande situatie gevels: uitbreiding scrubber en opslagruimte, plaatsing containers.
1149004 Tebodin 6 januari 2010. Nieuwe situatie plattegrond: uitbreiding scrubber en opslagruimte, plaatsing containers.
1149005 Tebodin 6 januari 2010. Nieuwe situatie gevels: uitbreiding scrubber en opslagruimte, plaatsing containers.
Uitbreiding scrubber:
1. Plaatsing containers (gebruiksoppervlak 60 m2) 12,2 x 2,45 x 2,55 m
2. Verhoging scrubber uitblaas door het aanbrengen van een tussenstuk van ca 4.000 mm.
3. Uitbreiding opslagruimte ten behoeve van de opslag oude olie (6,8, m2)
4. Uitbreiding opslagruimte ten behoeve van opslag lege gascilinders (7,5 m2)
5. Overkapping t.b.v. zijtoegang (7,0 m2)
Revisie A:
1149003 Tebodin 4 maart 2010. Bestaande situatie gevels: uitbreiding scrubber en opslagruimte, plaatsing containers. (datum gemeente 8 maart 2010)
1149004 Tebodin 5 maart 2010. Nieuwe situatie plattegrond: uitbreiding scrubber en opslagruimte, plaatsing containers. . (datum gemeente 8 maart 2010)
1149005 Tebodin 5 maart 2010. Nieuwe situatie gevels: uitbreiding scrubber en opslagruimte, plaatsing containers. (datum gemeente 8 maart 2010)
6. Wijziging opslag volle cilinders (5,0 m x 1,5m = 7,5 m2)
7. Wijziging opslag volle cilinders (5,2 m x 1,5 m = 7,8 m2 ) |